logo Sun di  Amura Antonio & c s.n.c
Menu
  • logo Sun di  Amura Antonio & c s.n.c
  • HOME
  • VENDITE
  • IL PROGETTO
  • CONTATTI
CERCA

Appartamento in villa in vendita a Varazze

Varazze

vendita
Trattative in agenzia
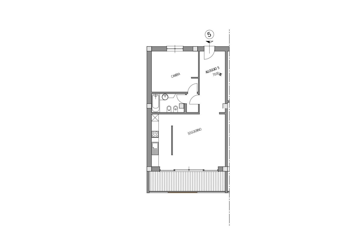
  • RiferimentoN 5 SECONDO PIANO
    • Locali
      locali 0.0

    Descrizione

    L'intervento per la realizzazione di Villa Baldi Apartments deriva da una iniziativa di
    riqualificazione che interessa un'area di grande pregio ambientale, in Comune di Varazze,,
    nell'ambito del promontorio dei Piani di Invrea.

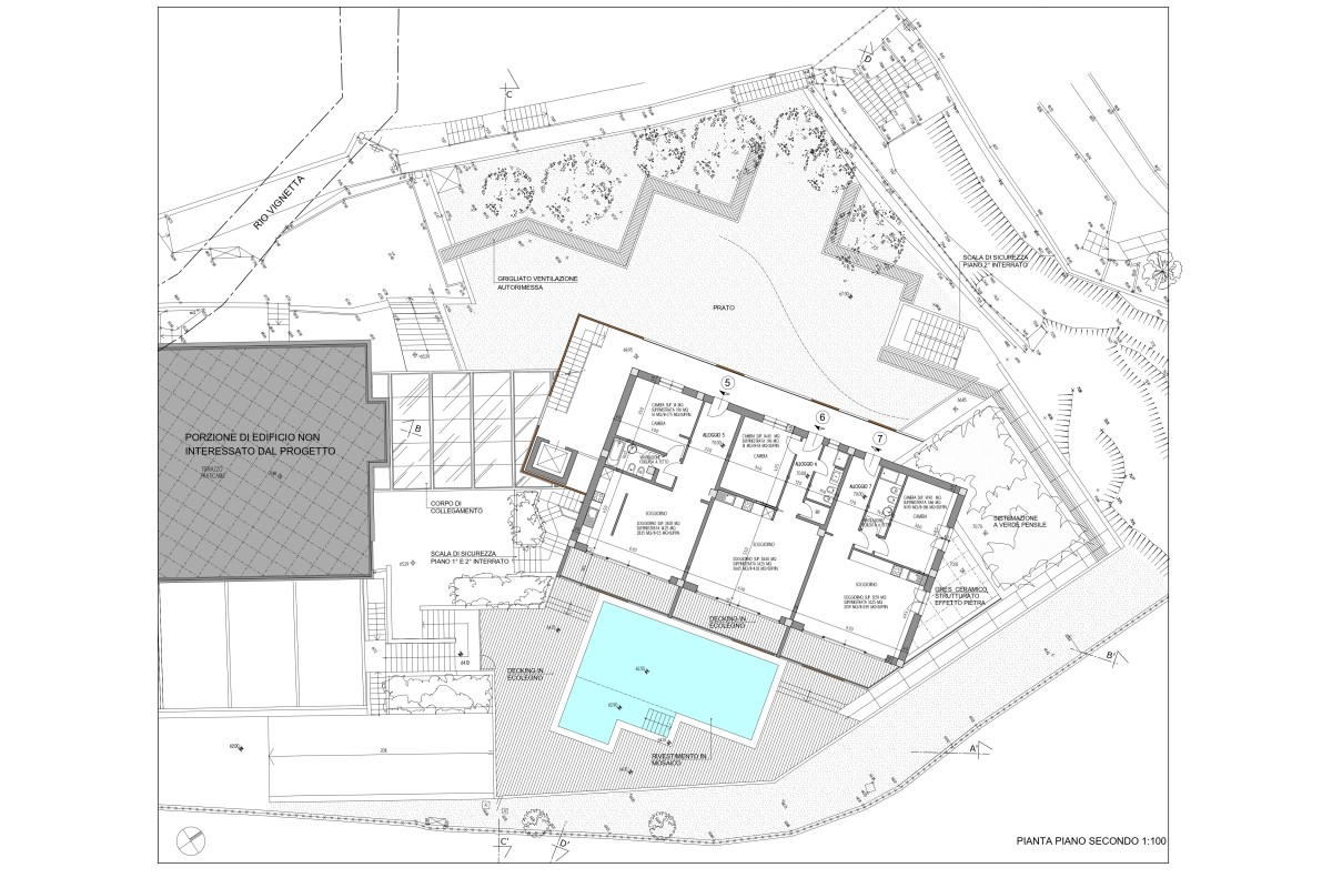
    Villa Baldi Apartments è un nuovo un edificio articolato su tre livelli, in spiccato dall'autorimessa
    interrata, posto su una balza circondata da verde privato, in prossimità dell'Hotel Le Roi e del
    Ristorante Blu di Mare.

    La risoluzione architettonica è scandita da una griglia strutturale in intonaco
    bianco con campate definite da parapetti in vetro temperato e schermi scorrevoli ombreggianti.
    A piano zero viene prevista una spa affacciata su una piscina e locali di servizio.

    I due livelli
    superiori, con terrazzi a loggia prospettanti sul mare, prevedono sette appartamenti
    distributivamente serviti da una torre scala / ascensore in collegamento con il piano box.

    Gli appartamenti hanno taglio da bilocale (soggiorno, cucinino o cucina, camera, bagno) e
    superficie media di 50 /60 mq. con possibilità di accorpamenti, oltre, per ciascuno, balconi o
    terrazzi.

    Pavimenti in legno, rivestimenti e pavimenti in gres nei bagni, terrazzi con pavimentazioni e
    schermature in ecolegno costituiscono la gamma dei materiali previsti.

    La climatizzazione si realizzerà con sistema a pompa di calore ad aria con terminali a
    ventilconvettori e regolazione per ambienti (portata, temperatura). I bagni prevedono scaldasalvietti
    elettrici.

    L'acqua calda sanitaria sarà prodotta da gruppo termico a condensazione a gas metano, ad
    integrazione dell'impianto solare / fotovoltaico in copertura. L'impianto elettrico domotico renderà
    gli appartamenti smart e tecnologicamente avanzati ...

    MOLTO PIU'CHE UNA SECONDA CASA.

    Informazioni aggiuntive

    Tipologia:Appartamento In Villa
    Numero Vani:0
    Piano:1°
    Piani:1
    Livelli:2
    Classe Energetica:A+++
    Edif. Energia quasi 0:Sì

    Accessori

    Piscina:Sì
    Ascensore:Sì
    Riscaldamento:Autonomo
    Tipo Riscaldamento:Pompa di calore
    Alimentazione:Energia elettrica (Pannelli fotovoltaici)

    Planimetrie

    Agenzia Immobiliare Sun di  Amura Antonio & c s.n.c - Planimetria 1
    Agenzia Immobiliare Sun di  Amura Antonio & c s.n.c - Planimetria 2
    Thumb planimetria numero 1
    Thumb planimetria numero 2

    Maggiori informazioni

    Ho letto, compreso e accetto la Privacy Policy di Villa Baldi Apartaments

    IMMOBILI SIMILI

    Appartamento In Villa
    Tratt. in Agenzia
    Varazze
    Vendita
    Rif: N 6 secondo piano
    foto non presente
    • superficie N.D.
    • bagni N.D.
    • vani N.D.
    • box auto No
    L'intervento per la realizzazione di villa baldi apartments deriva da una iniziativa diriqualificazione che interessa un'area di grande pregio ambientale, in comune di varazze,,nell'ambito del promontorio dei piani di invrea. Villa baldi apartments è un nuovo un edificio articolato su tre livelli, in spiccato dall'autorimessainterrata, posto su una balza circondata da verde privato, in prossimità dell'hotel le roi e delristorante blu di mare. La risoluzione architettonica è scandita da una griglia strutturale in intonacobianco con campate definite da parapetti in vetro temperato e schermi. . .
    VAI ALLA SCHEDA
    Appartamento In Villa
    Tratt. in Agenzia
    Varazze
    Vendita
    Rif: 3 a
    foto non presente
    • superficie N.D.
    • bagni N.D.
    • vani N.D.
    • box auto No
    L'intervento per la realizzazione di villa baldi apartments deriva da una iniziativa diriqualificazione che interessa un'area di grande pregio ambientale, in comune di varazze,,nell'ambito del promontorio dei piani di invrea. Villa baldi apartments è un nuovo un edificio articolato su tre livelli, in spiccato dall'autorimessainterrata, posto su una balza circondata da verde privato, in prossimità dell'hotel le roi e delristorante blu di mare. La risoluzione architettonica è scandita da una griglia strutturale in intonacobianco con campate definite da parapetti in vetro temperato e schermi. . .
    VAI ALLA SCHEDA
    Appartamento In Villa
    Tratt. in Agenzia
    Varazze
    Vendita
    Rif: 2 a
    foto non presente
    • superficie N.D.
    • bagni N.D.
    • vani N.D.
    • box auto No
    L'intervento per la realizzazione di villa baldi apartments deriva da una iniziativa diriqualificazione che interessa un'area di grande pregio ambientale, in comune di varazze,,nell'ambito del promontorio dei piani di invrea. Villa baldi apartments è un nuovo un edificio articolato su tre livelli, in spiccato dall'autorimessainterrata, posto su una balza circondata da verde privato, in prossimità dell'hotel le roi e delristorante blu di mare. La risoluzione architettonica è scandita da una griglia strutturale in intonacobianco con campate definite da parapetti in vetro temperato e schermi. . .
    VAI ALLA SCHEDA
    logo Sun di  Amura Antonio & c s.n.c

    CHI SIAMO

    L'intervento per la realizzazione di Villa Baldi Apartments deriva da una iniziativa di riqualificazione che interessa un'area di grande pregio ambientale, in Comune di Varazze,, nell'ambito del pro... [leggi di più]
    Sede legale: Via Genova, 43 - 17019 VARAZZE (SV)
    Sede op.: Via Genova, 43 - 17019 Varazze (SV)
    0199 5902
    348 7021160
    clicca qui per vedere l'indirizzo
    clicca qui per vedere la pec
    P.IVA: 01009190099

    LINK RAPIDI

    Home
    Il progetto
    Vendite
    Contatti

    PRIVACY

    Cookie Policy
    Privacy Policy
    Powered by A.R.E.A. Software Immobiliare - Sito Web immobiliare by A.R.E.A.
    Scroll Top
    • Scrivici senza impegno
    Logo Sun di  Amura Antonio & c s.n.c contatti

    Sun di Amura Antonio & c s.n.c

    0199 5902

    loader img