-
Locali
0.0
Descrizione
L'intervento per la realizzazione di Villa Baldi Apartments deriva da una iniziativa di
riqualificazione che interessa un'area di grande pregio ambientale, in Comune di Varazze,,
nell'ambito del promontorio dei Piani di Invrea.
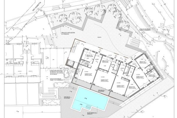
Villa Baldi Apartments è un nuovo un edificio articolato su tre livelli, in spiccato dall'autorimessa
interrata, posto su una balza circondata da verde privato, in prossimità dell'Hotel Le Roi e del
Ristorante Blu di Mare.
La risoluzione architettonica è scandita da una griglia strutturale in intonaco
bianco con campate definite da parapetti in vetro temperato e schermi scorrevoli ombreggianti.
A piano zero viene prevista una spa affacciata su una piscina e locali di servizio.
I due livelli
superiori, con terrazzi a loggia prospettanti sul mare, prevedono sette appartamenti
distributivamente serviti da una torre scala / ascensore in collegamento con il piano box.
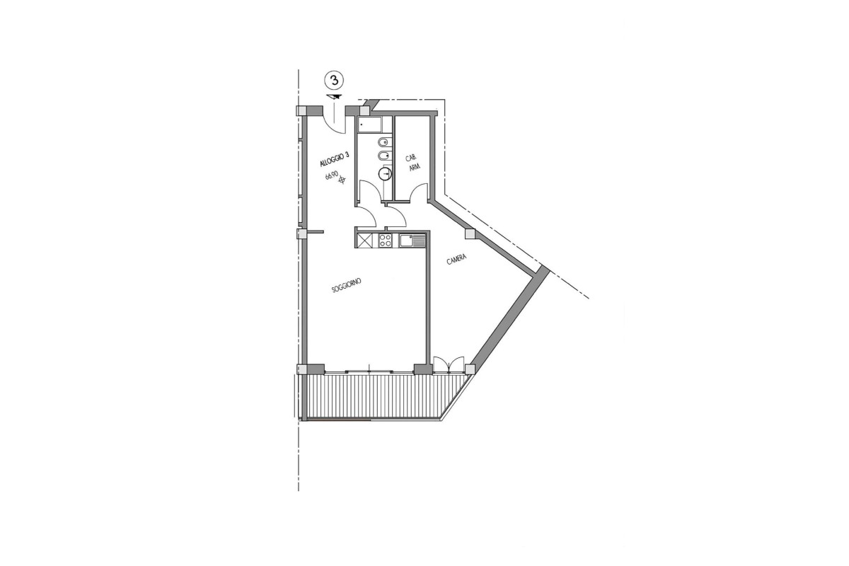
Gli appartamenti hanno taglio da bilocale (soggiorno, cucinino o cucina, camera, bagno) e
superficie media di 50 /60 mq. con possibilità di accorpamenti, oltre, per ciascuno, balconi o
terrazzi.
Pavimenti in legno, rivestimenti e pavimenti in gres nei bagni, terrazzi con pavimentazioni e
schermature in ecolegno costituiscono la gamma dei materiali previsti.
La climatizzazione si realizzerà con sistema a pompa di calore ad aria con terminali a
ventilconvettori e regolazione per ambienti (portata, temperatura). I bagni prevedono scaldasalvietti
elettrici.
L'acqua calda sanitaria sarà prodotta da gruppo termico a condensazione a gas metano, ad
integrazione dell'impianto solare / fotovoltaico in copertura. L'impianto elettrico domotico renderà
gli appartamenti smart e tecnologicamente avanzati ...
MOLTO PIU'CHE UNA SECONDA CASA.





